|
|
| |
 |
|
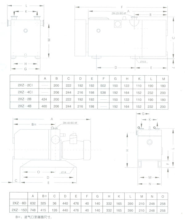
2XZ型直聯式旋片真空泵

1、結構獨特:采用一九九二年從瑞士 Balzers 公司引進的 DUO 016B 技術生產。
2、體積小。
3、噪聲低。
4、2XZ-4B、2XZ-4CI、2XZ-2B、2XZ-2CI四種型號泵電機和泵體同時浸在泵油申,2XZ-8D、2XZ-15D泵采用進口軸封徹底消除了泵油的泄漏。
5、只要變換進氣口的安裝方式就可實現抽氣管道的立式或趴式安裝。
6、裝有安全閥和氣鎮閥,泵停轉后能自動放氣,可防止泵油對真空系統的污染,并有助于排除水蒸汽。
技術參數
|
項目/型號
|
單位
|
2XZ-2B
|
2XZ-2CI
|
2XZ-4B
|
2XZ-4CI
|
2XZ-8D
|
2XZ-15D
|
|
抽氣速度
|
L/S(m3/h)
|
2.3(8)
|
2.3(8)
|
4.5(16)
|
4.5(16)
|
9(34)
|
18(68)
|
|
極限壓力
|
分壓力 (關氣鎮)
|
Pa
|
2×10-2
|
2×10-2
|
2×10-2
|
2×10-2
|
2×10-2
|
2×10-2
|
|
總壓力 (關氣鎮)
|
Pa
|
6×10-1
|
6×10-1
|
6×10-1
|
6×10-1
|
6×10-1
|
6×10-1
|
|
分壓力 (開氣鎮)
|
Pa
|
6×10-1
|
6×10-1
|
6×10-1
|
6×10-1
|
6×10-1
|
6×10-1
|
|
總壓力 (開氣鎮)
|
Pa
|
9×10-1
|
9×10-1
|
9×10-1
|
9×10-1
|
9×10-1
|
9×10-1
|
|
水蒸氣容量
|
g/h
|
360
|
360
|
700
|
700
|
570
|
1150
|
|
躁音 (關氣鎮)
|
dB(A)
|
65
|
65
|
65
|
65
|
70
|
70
|
|
工作溫度
|
οC
|
90
|
90
|
90
|
90
|
90
|
90
|
|
電機
|
相數
|
|
3
|
單
|
3
|
單
|
3
|
3
|
|
電壓
|
V
|
380
|
220
|
380
|
220
|
220/380Δ/γ
|
220/380Δ/γ
|
|
功率
|
Kw
|
0.37
|
0.37
|
0.55
|
0.55
|
1.1
|
1.5
|
|
轉速
|
r/min
|
1420
|
1420
|
1420
|
1420
|
1400
|
1400
|
|
重量
|
kg
|
23
|
24
|
30
|
32
|
70
|
90
|
性能曲線

安裝尺寸

|
|